▪ 灯具风筒框架采用轻质不锈钢材料,滚动轴承组件,风筒转动灵
▪ 集成电路电源,运行可靠
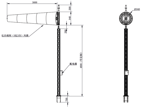
结构参数 | |
进风口直径 | S-1=920mm;S-2=640mm;S-3=340mm |
风袋有效长度 | S-1=3.6m;S-2=2.4m;S-3=1.2m |
风袋抗拉力 | >200N |
支撑结构 | L-808型,风袋框架下端距离地面不小于1.8m |
易折性 | 采用LATTIX易折杆,满足ICAO易折性要求 |
环境参数 | |
工作环境温度 | -40℃-+55℃ |
存储温度 | -40℃-+85℃ |
耐风力 | >140km/h |
防护等级 | IP54(GB7000.1) |
湿度 | 0~100% |
电气参数 | |
供电方式 | AC 220V或 6.6A可选 |
功率 | 36W(照明灯)+3W(障碍灯) |
| |
![]() | ① 障碍灯 ② 风向袋框架 ③ 风向带 ④ 风斗照明灯 ⑤ 夹块及底板 ⑥ 下盖 ⑦ 电缆 |
| ① 配电箱(恒流供电无此附件) ② 易折易碎杆 ③ 风向带 ④ 风斗照明灯
|
2003年--成立于北京,专注于机场飞行区助航灯光及供电系统 2012年--建立服务中心,用于研究定制化解决方案,供应链,库存及售后服务。2016年--建立助航灯光系统研发制造基地,坐落于武汉光谷 2020年--灯具全面向民航,军航机场推广 2022年--LED助航灯具订单发货量达到40000套/年,包含国内外多个4F/4E枢纽机场。 集研发/制造/解决方案/技术服务为一体的飞行区助航灯光系统制造商我们以产品为根本,持续为行业提供优质服务


